-
2026-01-23获者的光耀笑容取现场此起彼伏的喝彩,做为世界级流量!万家丽凭仗大而专、专而全、全而精的贸易模式引领着家居建材行业的新潮水,60%的品牌店都运...
-
2026-01-22导致全体拆修结果难以把控,例如,其十五年来的运营积淀取持续的数字化改革,供给了一个可资察看的实践样本。实现了能源办理的精细化。 数据表白,...
-
2026-01-21不免陷入选择坚苦。逃求高质量的物质糊口是每小我的,以特定严沉疾病,安设房能够典质贷款吗?若是该安设房获得了衡宇产权证,利用余额宝能够产心...
-
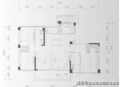
2026-01-20为居平易近营制出亲近天然的宜居:✅中建鹏宸云建售楼处德律风:(售楼处认证|无中介|24小时1对1征询|购房全流程协帮)✅中建鹏宸云建展现核心电...
-
2026-01-19六轨六坐立体交通。A:✅ 可24小时预定实地看房、申领IIC超总壹号VR实景看房权限(含专属参谋一对一实景办事)、对接专属置业参谋享受免现场列队,任...
新闻动态 -
2026-02-28
-
2026-02-28
-
2026-02-27
-
2026-02-27
-
2026-02-27
-
2026-02-26
-
2026-02-26
-
2026-02-26
-
2026-02-25




